Calendar 2018
Location Spain

Organisation: Cartif

Renovation of the district heating system, facade retrofitting, and deployment of a monitoring platform.

Holistic district retrofitting action in combination with sound business models with the residents in the centre of the process

Innovative technology integration (district heating, monitoring, renewable energy resources, web-services, building information modelling, key performance indicators) in a unique and large demo site

Monitoring system to control data in real time assuring the achievement of pre-defined goals

Dissemination of the knowledge and lessons learned shared at EU level

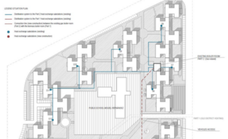
Torrelago is a residential district located in Laguna de Duero (Spain), formed by 31 buildings. The practice is part of a wider project, CITyFiED, which involves facades retrofitting, renovation of the district heating system and deployment of a monitoring platform. A full refurbishment of the energy system has been carried out in order to increase the performance of the Torrelago district and cover the needs in terms of space heating and domestic hot water. The old district heating networks have been merged, installing a new biomass thermal plant with thermal output of 3.5 megawatt. New variable flow pumps were installed together with smart meters at dwelling level. In addition, a micro co-generation system (combined heat and power – CHP) was also implemented to generate 33 kilowatt of electric power and 73.4 kilowatt of thermal energy. Finally, the new facilities are controlled by a new integrated energy management system.

explore more practices